LIGHT ART
About us
LIGHTING DESIGN
LIGHTING PRINCIPLES
SHOWREEL
Book
RM
Design Research
LIGHT ART
About us
LIGHTING DESIGN
LIGHTING PRINCIPLES
SHOWREEL
Book
RM
Design Research
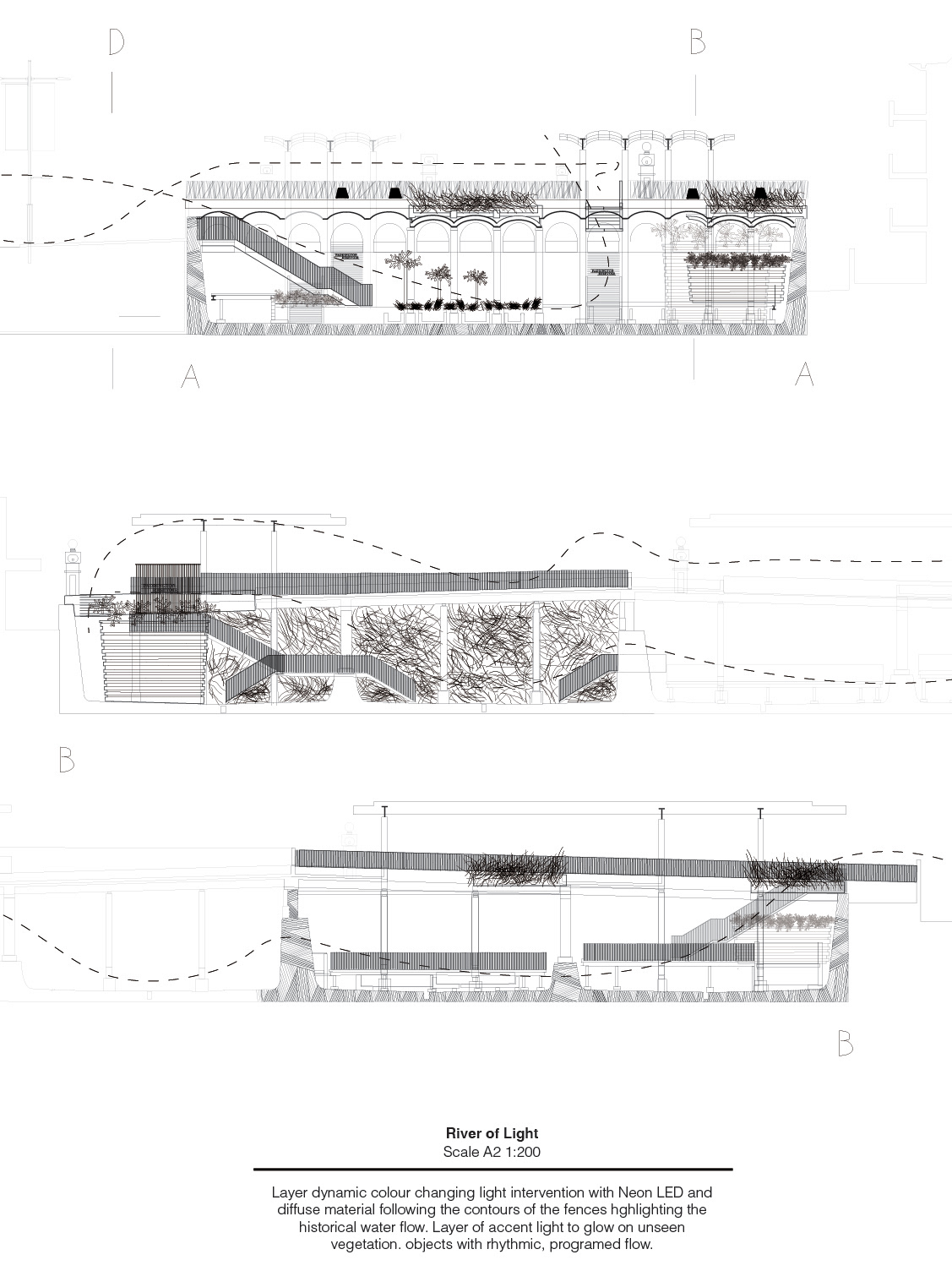
Light Temple
Landscape architecture exploration of Public Space and Lighting
You may also like
PHD
2017
Hunter River Remediation
2022
Endangered
2025
↑
Back to Top